Quartier Wieck9
Preview only — see all hotel photos
See all 34 photos
Mostrar hotel en el mapa
Quartier Wieck9
La villa Quartier Wieck9|Quartier Wieck9 está situada a unos 5 minutos a pie de la Darßer Arche y ofrece sauna, garantizando a los huéspedes una estancia relajante. Esta casa de vacaciones, que se encuentra a una distancia de 3 km de la Laguna Bodstedter, ofrece la posibilidad de practicar equitación.
El Museo del Ámbar Darsser y Galería Local de Prerow está a poco más de 10 minutos en coche de esta villa y puedes visitar el Museo de Silvicultura y Caza "Ferdinand von Raesfeld" a 15 minutos en coche. El alojamiento está situado a una distancia de 4 km de lugares de interés cultural como el Darss-Museum Prerow. Situada a poco más de 20 minutos en coche de la Iglesia del Marinero, la villa Quartier Wieck9|Quartier Wieck9 es uno de los destinos favoritos de fieles y turistas.
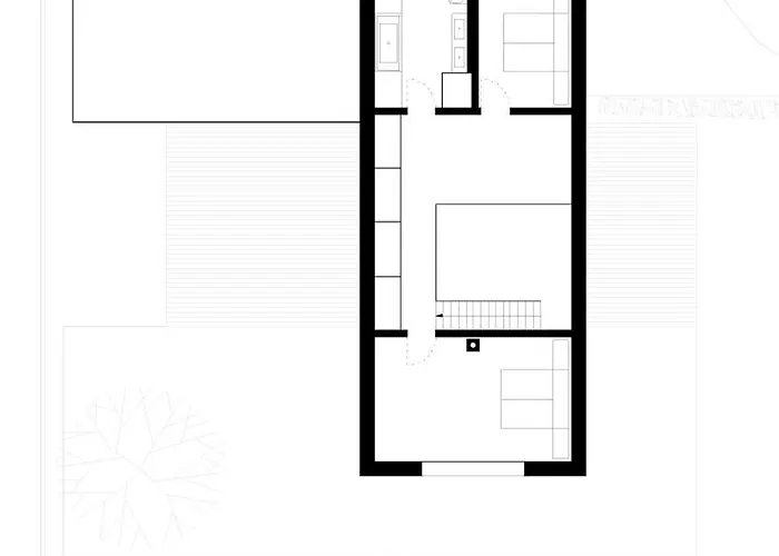
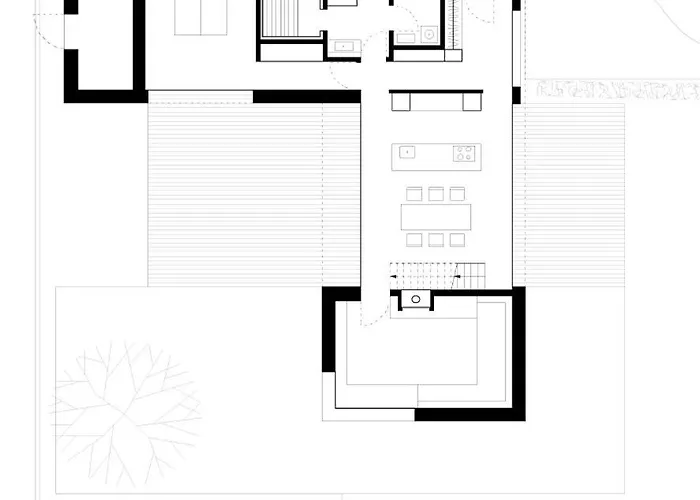
Este lugar dispone de un cuarto de baño con ducha y lavadora. Los huéspedes también pueden disfrutar de la comodidad del secador de pelo.
La villa Quartier Wieck9|Quartier Wieck9 incluye una cocina completa con hervidor eléctrico, lavaplatos y nevera. Los huéspedes pueden cenar en el restaurante Eiscafe Lange, situado a 150 metros. El aeropuerto más cercano es Rostock-Laage, ubicado a 85 km de la villa.
Comodidades
Características principales
- Wi-Fi
- Parking gratuito
- Actividades
- No se permiten mascotas
Instalaciones
- Prohibido fumar en el territorio
- Wifi
- Aparcamiento gratis
- Caja fuerte
- No se admiten animales
- Detectores de humo
- Hervidor
- Utensilios de cocina
- Zona de comedor exterior
- Jardín
- Sauna
- Equitación
- Calefacción
- Zona de estar
- Terraza
- Mueble de jardín
- Mesa de comedor
- Servicio de plancha
- Lavadora
- Reproductor de CD
Política
Mapa
Atracciones locales
Aeropuertos
- Aeropuerto de Rostock-Laage (83 km)